Synliggör fastigheters potential
När potentialen inte syns
Vid fastighetsförsäljning är det ofta första intrycket som avgör.
Många objekt blir dock svårsålda eftersom potentiella kunder har svårt att föreställa sig rummens möjligheter.
För dig som mäklare
Vanliga utmaningar:
- Gamla eller felaktiga ritningar
- Saknade underlag i äldre byggnader
- Komplexa vindsvåningar eller oregelbundna planlösningar
- Renoveringsobjekt
- Rum som upplevs mindre eller mer oorganiserade än de är
Potentiella kunder ser ofta det befintliga skicket, men inte potentialen.
Här kan en tydlig visuell presentation göra stor skillnad.
Hur jag kan hjälpa dig som Mäklare:
Jag gör fastigheters möjligheter synliga, så att fler kunder kan förstå, känna och föreställa sig ett framtida hem.
Tjänster
Arkitektoniskt stöd för fastighetsförsäljning
Jag hjälper mäklarbyråer och fastighetsägare att presentera objekt på ett tydligare, mer attraktivt och känslomässigt engagerande sätt.
Detta inkluderar:
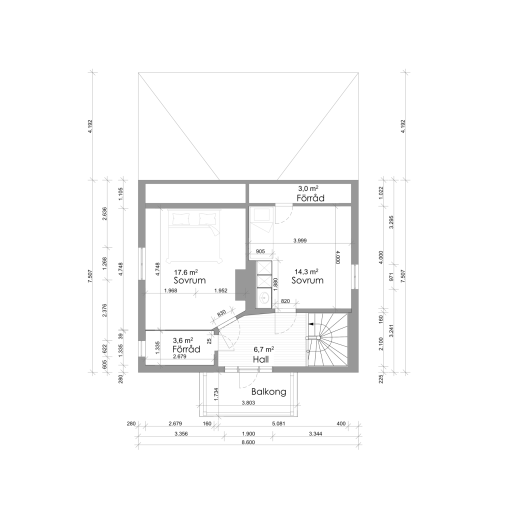
- Tydliga och uppdaterade planritningar (i rätt skala)
- Alternativa planlösningar och ombyggnadsförslag
- Rumsliga visualiseringar / “så kan det se ut”
- Förenkling av komplexa planlösningar





